|
华为通信电源TP48200B-N20B2,室内48V高频开关电源机柜,600*600*2000MM
华为通信电源TP48200B-N20B2,华为TP48200B-N20B2高频开关电源,600*600*2000MM 产品概述TP48200B-N20B2、TP48200B-N20B3、TP48200B-L20B2、TP48400B-N20B3 和 TP48400B-L20B1 是室内通信电源系统,将交流电或太阳能转换为稳定的直流电,为– 48V 系列的通信设备进行供电。TP48200B-N20B2、TP48200B-N20B3 和 TP48200B- L20B2 最大输出电流是 200A,TP48400B-N20B3 和TP48400B-L20B1 最大输出电流是 400A,机柜外观如图 2-1 所示。
2.2 系统特点l 交流输入电压范围宽至 85V AC~300V AC l 可接太阳能输入,电压范围宽至 58V DC~150V DC l 完善的电池管理功能 l 完善的交、直流防雷设计 l 网络化设计,提供一路 FE 接口、一路 RS485/RS232 接口
l 支持华为网管协议和电总协议,可与华为NetEco 网管、M2000 网管或第三方网管通信,组网灵活,可实现远程管理,无人值守 l 支持 LCD 界面显示、按键操作 l 支持WEB 界面操作 l 支持用户界面多语言功能,如英语、中文、西班牙语、葡萄牙语、意大利语、法语、俄语等 l 支持整流模块、监控模块、太阳能模块和二次电源模块热插拔 l 整流模块功率因数值达 0.99 l 高效整流模块效率最高达到 96%,标效整流模块效率最高达到 94% l 太阳能模块效率最高达到 98.5% l 二次电源模块效率最高达到 92%
2.3 系统配置表2-1 系统配置
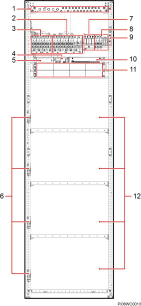
3.1 内部结构TP48200B-N20B2
图3-1 TP48200B-N20B2 内部结构
(1)RTN+母排 (2)次要负载下电支路(LLVD) (3)重要负载下电支 路(BLVD) (4)监控模块 SMU02B (5)电池强制上电开关(盖板后) (6)电池空开 (7)交流防雷器 (8)交流输入空开及端子 (9)机柜接地排 (10)用户接口模块 UIM02C
(13)电池安装空间 (11)整流模块或太阳能模块安装空间 (12)用户设备安装空间(16U)
TP48200B-N20B3
图3-2 TP48200B-N20B3 内部结构
(1)RTN+母排 (2)次要负载下电支路(LLVD) (3)重要负载下电支 路(BLVD) (4)监控模块 SMU02B (5)电池强制上电开关(盖板后) (6)电池空开 (7)交流防雷器 (8)交流输入空开及端子 (9)机柜接地排 (10)用户接口模块 UIM02C (11)整流模块或太阳能模块安装空间 (12)电池安装空间
TP48200B-L20B2
图3-3 TP48200B-L20B2 内部结构
(1)RTN+母排 (2)次要负载下电支路 (LLVD) (3)重要负载下电支路 (BLVD) (4)监控模块 SMU02B (5)电池强制上电开关(盖板后) (6)电池空开 (7)交流防雷器 (8)交流输入空开 (9)机柜接地排 (10)用户接口模块 UIM02C (11)整流模块或太阳能模块安装空间 (12)用户设备安装空间 (16U)
(13)电池安装空间
TP48400B-N20B3
图3-4 TP48400B-N20B3 内部结构
(1)RTN+母排 (2)次要负载下电支路 (LLVD) (3)重要负载下电支路 (BLVD) (4)监控模块 SMU02B (5)电池强制上电开关(盖板后) (6)电池空开
(7)交流防雷器 (8)交流输入空开及端子 (9)机柜接地排 (10)用户接口模块 UIM02C (11)整流模块或太阳能模块安装空间 (12)电池安装空间
TP48400B-L20B1
图3-5 TP48400B-L20B1 内部结构
(1)RTN+母排 (2)次要负载下电支路 (LLVD) (3)重要负载下电支路 (BLVD)
(4)监控模块 SMU02B (5)电池强制上电开关(盖板后) (6)电池空开 (7)交流防雷器 (8)交流输入空开 (9)机柜接地排 (10)用户接口模块 UIM02C (11)整流模块或太阳能模块安装空间 华为通信电源TP48200B-N20B2,华为TP48200B-N20B2高频开关电源,600*600*2000MM 系统配置
|
||||||||||||||||||||||||||||||||||||||||||||||||||||||||||||||||||||||||||||||||||||||||||||||||||||||||||||||||||||||||||||||||||||||||||||||||||||||||||||||||||||||||||||||||||||||||||||||||||||||||||||||||||||||||||||||||||||||||||||||||||||||











